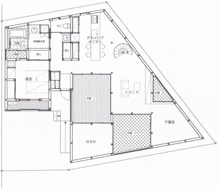
古い住宅地に計画されたこの住宅は、
周囲が囲まれており景観には恵まれていない。
さらに敷地は五角形の変形敷地だったため、
その特性を生かしたプランが必要とされた。
そのため敷地の形に外壁を設定し、その中に
3つの中庭を配置したコートハウスを計画。
中庭は採光、通風、プライバシーの確保に
有効な手段となるとともに、
中庭に切り取られ雁行した室内には
複雑な空間が出現した。
第21回 すまいる愛知住宅賞 愛知県知事賞
design term : 2008.01-2008.06
construction term : 2008.09-2009.02
site area : 202.30m2
total floor area : 130.00m2



















